Place Sutton

7400 rue Sherbrooke Ouest, Montréal, H4B 1R8

* Les appartements disponibles peuvent différer des photos présentées ci-dessous.
* Les appartements disponibles peuvent différer des photos présentées ci-dessus.

title= Imprimer la fiche

Description

Place Sutton est un immeuble de 400 logements situé dans l’arrondissement de Côte-des-Neiges–Notre-Dame-de-Grâce. L’immeuble offre plusieurs commodités, dont une piscine intérieure, une cour extérieure, une salle communautaire et une buanderie. Place Sutton est à proximité d’une multitude de centres d’intérêt et de services tels que des épiceries, des pharmacies et des écoles primaires et secondaires et des routes principales. Bien desservi, il est tout près de la gare Montréal-Ouest du train de banlieue, des arrêts d’autobus, des autoroutes et des stations de vélos bixi.Pour les étudiants, le Campus Loyola de l’Université Concordia se trouve à seulement quelques minutes à pied. Vivre à Place Sutton, c’est vivre une vie de quartier diversifié, heureuse et sécuritaire.

Grandeur

 

Inclusions

Chauffage

Électricité

Eau chaude

Semi-meublé

Des frais additionnels s’appliquent pour les appartements semi-meublés.

Caractéristiques

  • Rangement
  • Nombre de salle de bain : 1
  • Balcon privé : 1
  • Stationnement intérieur non chauffé : des frais supplémentaires sont à prévoir

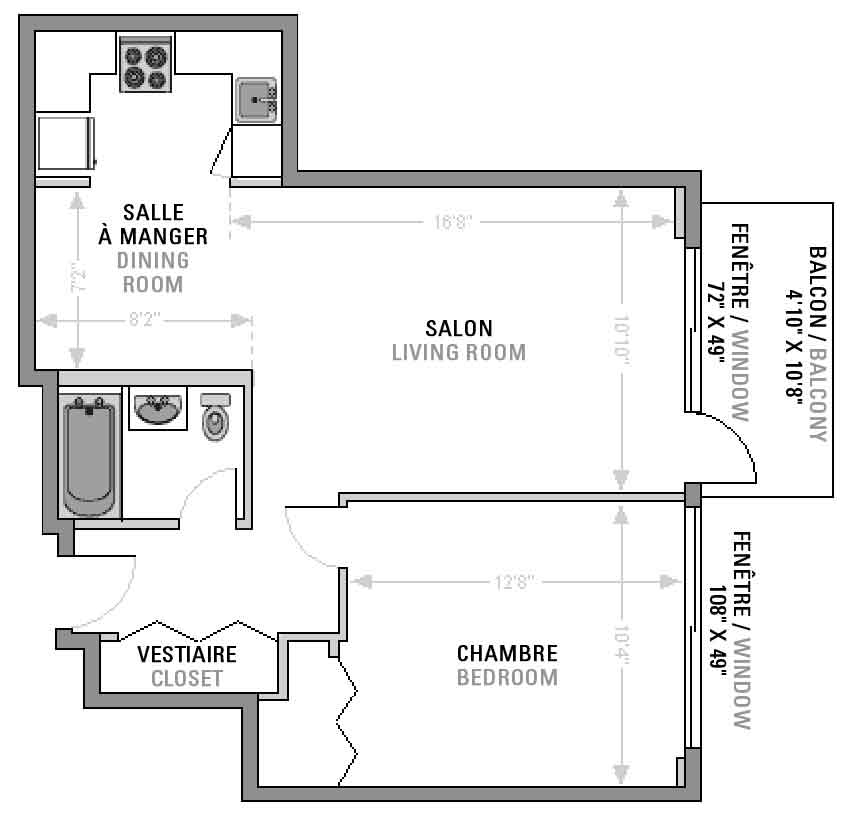
Plan de l'appartement
Dimensions approximatives

Disponibilités

title=

 Grandeur Débutant Disponibilité
1 110 $ Maintenant chevron_right
1 295 $ Maintenant chevron_right
1 580 $ Maintenant chevron_right
- - chevron_right
- - chevron_right

Certains services sont inclus, parlez à un représentant du Groupe Laberge.

Nom du complexe / Immeuble

Place Sutton

Adresse

7400 rue Sherbrooke Ouest
Montréal, H4B 1R8

Description du complexe

402 logements sur 13 étages

title=

Place Sutton est un immeuble de 400 logements situé dans l’arrondissement de Côte-des-Neiges–Notre-Dame-de-Grâce. L’immeuble offre plusieurs commodités, dont une piscine intérieure, une cour extérieure, une salle communautaire et une buanderie. Place Sutton est à proximité d’une multitude de centres d’intérêt et de services tels que des épiceries, des pharmacies et des écoles primaires et secondaires et des routes principales. Bien desservi, il est tout près de la gare Montréal-Ouest du train de banlieue, des arrêts d’autobus, des autoroutes et des stations de vélos bixi.Pour les étudiants, le Campus Loyola de l’Université Concordia se trouve à seulement quelques minutes à pied. Vivre à Place Sutton, c’est vivre une vie de quartier diversifié, heureuse et sécuritaire.

Services de l'immeuble

Stationnement intérieur chauffé

Piscine intérieure

Sauna

Cour extérieur

Espace de rangement

Buanderie

Salle commune

Dispositifs de sécurité

Carte d'accès

Caméra

Intercom

Porte automatique

Ascenseur

Pour information ou visite


514-489-4963

7400 rue Sherbrooke Ouest, Montréal, H4B 1R8

sutton@laberge.qc.ca

Faire une demande d'information

Pour connaître les disponibilités des appartements ou pour planifier une visite, veuillez communiquer directement avec le responsable de l'immeuble.

Pour toutes questions relatives à la protection de vos renseignements personnels,
veuillez communiquer avec le Responsable de la protection des renseignements personnels.

Responsable de la protection des renseignements personnels

5355, boul. des Gradins
Québec (Québec)
G2J 1C8

confidentialite@laberge.qc.ca