Le 224

224 rue seigneuriale, Québec, G1E 0M8

* Les appartements disponibles peuvent différer des photos, des plans et d'autres représentations visuelles présentées ci-dessous.
* Les appartements disponibles peuvent différer des photos, des plans et d'autres représentations visuelles présentées ci-dessus.

title= Imprimer la fiche

Description

Le 224 est un immeuble de 90 appartements modernes et raffinés et réponds aux besoins des locataires les plus exigeants. Ce prestigieux immeuble offre une vue magnifique sur tous ses angles. Situé dans l’arrondissement de Beauport, il est à proximité de l’autoroute 40, des transports en commun, et d’une multitude de centres d’intérêt et de services tels que des épiceries, du Carrefour Beauport, des services de santé et de plusieurs parcs urbains. S’établir au 224, c’est vivre une vie de quartier tranquille, confortable et sécuritaire.

Grandeur

Étage

4

Disponibilité

Juillet 2026

 

Superficie

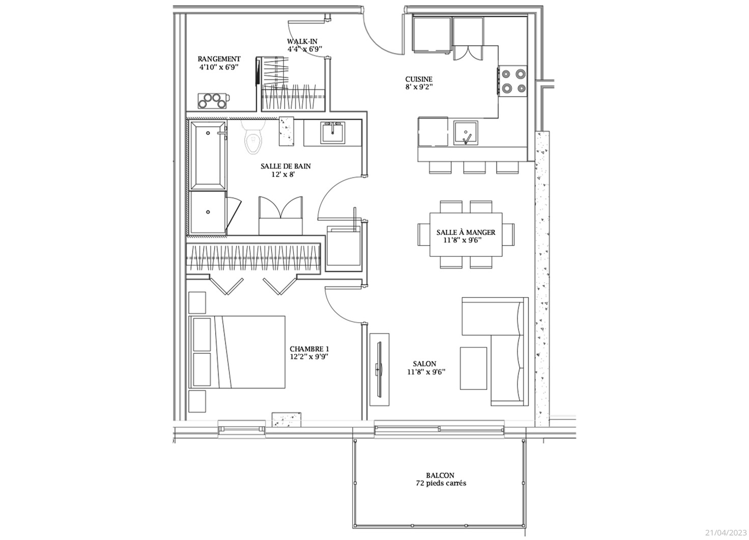
742 pi2

Débutant

1 360 $

Inclusions

Chauffage

Électricité

Eau chaude

Inclus

Inclus

Inclus

Inclus

Air climatisé

Caractéristiques

  • Électroménagers inclus : Cuisinière, Réfrigérateur, Lave-vaiselle, Laveuse, Sécheuse et Micro-onde
  • Stationnement extérieur : inclus
  • Porte patio : 7 pieds x 9 pieds
  • Rangement intérieur : 39 pi² à 43 pi² au sous-sol
  • Hauteur des plafonds : 8,5 à 9,5 pieds
  • Balcon privé : 72 pi²
  • Échangeur d'air
  • Terrasse au rez de chaussée
  • Comptoirs de cuisine et salle de bain en quartz
  • Espace dépôt dans l’appartement
  • Insonorisation : dalle de 8 pouces avec membrane INSONOBOIS de 35mm
  • Ascenseur et chute à déchet
  • Unité d’air climatisé individuelle
  • Stationnement intérieur non chauffé : des frais supplémentaires sont à prévoir
  • Stationnement intérieur chauffé (possibilité de borne de recharge) : des frais supplémentaires sont à prévoir

Plan de l'appartement
Dimensions approximatives

Nom du complexe / Immeuble

Le 224

Adresse

224 rue seigneuriale
Québec, G1E 0M8

Description du complexe

90 logements sur 7 étages

title=

Le 224 est un immeuble de 90 appartements modernes et raffinés et réponds aux besoins des locataires les plus exigeants. Ce prestigieux immeuble offre une vue magnifique sur tous ses angles. Situé dans l’arrondissement de Beauport, il est à proximité de l’autoroute 40, des transports en commun, et d’une multitude de centres d’intérêt et de services tels que des épiceries, du Carrefour Beauport, des services de santé et de plusieurs parcs urbains. S’établir au 224, c’est vivre une vie de quartier tranquille, confortable et sécuritaire.

Services de l'immeuble

Stationnement extérieur

Stationnement intérieur chauffé

Espace de rangement

Dispositifs de sécurité

Carte d'accès

Caméra

Intercom

Ascenseur

Accès pour mobilité réduite

Pour information ou visite


418-431-2062

224 avenue Seigneuriale, Québec, G1W 2W4

le224@laberge.qc.ca

Faire une demande d'information

Pour connaître les disponibilités des appartements ou pour planifier une visite, veuillez communiquer directement avec le responsable de l'immeuble.

Pour toutes questions relatives à la protection de vos renseignements personnels,
veuillez communiquer avec le Responsable de la protection des renseignements personnels.

Responsable de la protection des renseignements personnels

5355, boul. des Gradins
Québec (Québec)
G2J 1C8

confidentialite@laberge.qc.ca