Place Sutton
7400 rue Sherbrooke Ouest, Montréal, H4B 1R8
Grandeur
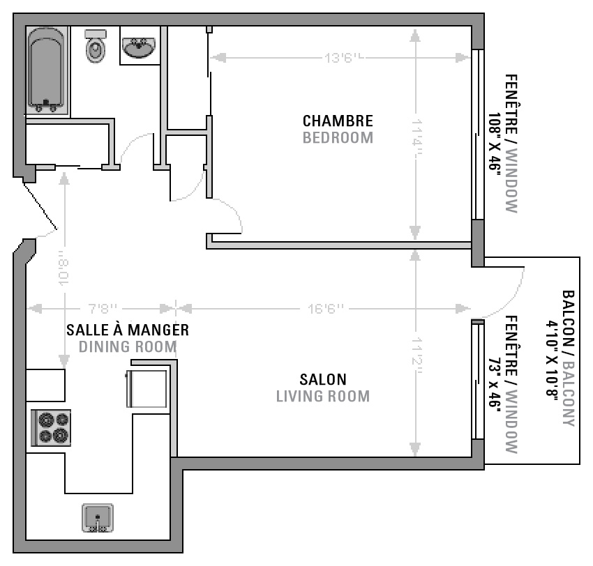
3½
Description
Place Sutton est un immeuble de 400 logements situé dans l’arrondissement de Côte-des-Neiges–Notre-Dame-de-Grâce. L’immeuble offre plusieurs commodités, dont une piscine intérieure, une cour extérieure, une salle communautaire et une buanderie. Place Sutton est à proximité d’une multitude de centres d’intérêt et de services tels que des épiceries, des pharmacies et des écoles primaires et secondaires et des routes principales. Bien desservi, il est tout près de la gare Montréal-Ouest du train de banlieue, des arrêts d’autobus, des autoroutes et des stations de vélos bixi.Pour les étudiants, le Campus Loyola de l’Université Concordia se trouve à seulement quelques minutes à pied. Vivre à Place Sutton, c’est vivre une vie de quartier diversifié, heureuse et sécuritaire.
Inclusions
- Chauffage
- Eau chaude
- Électricité
- Semi-meublé
Caractéristiques
- Rangement
- Nombre de salle de bain : 1
- Balcon privé : 1
- Stationnement intérieur non chauffé : des frais supplémentaires sont à prévoir
Plan de l'appartement
