Place Belmont Bas

2175 app 303, avenue Chapdelaine, Québec, G1V 1M9

title= Imprimer la fiche

Description

Avec ses 210 appartements répartis dans 5 immeubles, Place Belmont Bas est un complexe sécuritaire idéal pour les étudiants qui offre la possibilité de louer des appartements non meublés et semi-meublés. Situé dans le secteur de la Cité-Universitaire, les étudiants peuvent ainsi se rendre à leurs cours en seulement quelques minutes. Place Belmont Bas est à proximité des principaux services tels que des épiceries, des pharmacies et des centres commerciaux. Envie d’une vie de quartier au cœur d’un milieu dynamique et offrant une grande diversité? Place Belmont Bas est la destination idéale.

Grandeur

Étage

2

Inclusions

Chauffage

Électricité

Eau chaude

Caractéristiques

  • Rangement
  • Nombre de salle de bain : 1
  • Balcon privé : 1
  • Stationnement extérieur : selon la disponibilité
  • Stationnement intérieur non chauffé : 65$

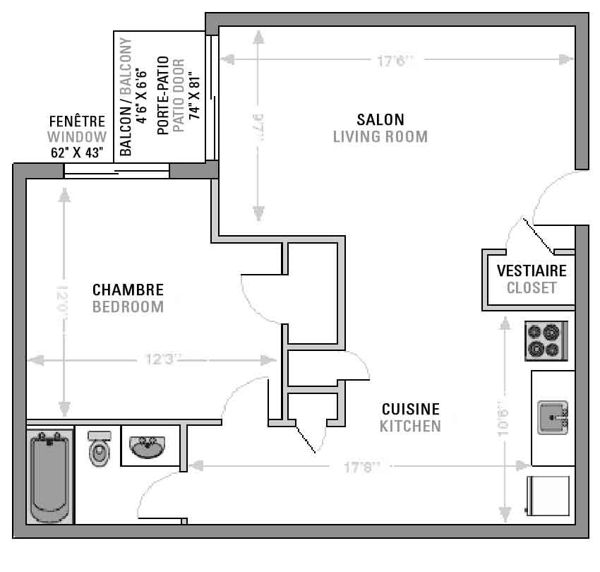
Plan de l'appartement
Dimensions approximatives

Nom du complexe / Immeuble

Place Belmont Bas

Adresse

2175 avenue Chapdelaine
Québec, G1V 1M9

2185 avenue Chapdelaine
Québec, G1V 1M9

2190 avenue Chapdelaine
Québec, G1V 1N1

2195 avenue Chapdelaine
Québec, G1V 1M9

770 rue de Belmont
Québec, G1V 2W9

Description du complexe

210 logements sur 4 étages

title=

Avec ses 210 appartements répartis dans 5 immeubles, Place Belmont Bas est un complexe sécuritaire idéal pour les étudiants qui offre la possibilité de louer des appartements non meublés et semi-meublés. Situé dans le secteur de la Cité-Universitaire, les étudiants peuvent ainsi se rendre à leurs cours en seulement quelques minutes. Place Belmont Bas est à proximité des principaux services tels que des épiceries, des pharmacies et des centres commerciaux. Envie d’une vie de quartier au cœur d’un milieu dynamique et offrant une grande diversité? Place Belmont Bas est la destination idéale.

Services de l'immeuble

Espace de rangement

Buanderie

Dispositifs de sécurité

Carte d'accès

Intercom

Plan du complexe
* Dimensions approximatives

Place Belmont Bas plan

Disponibilités

title=

Immeuble # de porte  Grandeur Prix Étage Inclusions Entrées Disponibilité Promo
2190 301 1 445 $ 2 Chauffage Eau chaude Électricité Maintenant chevron_right
2195 309 1 000 $ 2 Chauffage Eau chaude Électricité Maintenant chevron_right
2190 208 810 $ RDC Chauffage Eau chaude Électricité Maintenant chevron_right

Accéder à un appartement

Pour information ou visite


418-653-3679

place.belmont2@laberge.qc.ca

Faire une demande d'information

Pour connaître les disponibilités des appartements ou pour planifier une visite, veuillez communiquer directement avec le responsable de l'immeuble.

Pour toutes questions relatives à la protection de vos renseignements personnels,
veuillez communiquer avec le Responsable de la protection des renseignements personnels.

Responsable de la protection des renseignements personnels

5355, boul. des Gradins
Québec (Québec)
G2J 1C8

confidentialité@laberge.qc.ca