Seasons
6600 chemin Kildare, Côte St-Luc, H4W 1B7
Size
3½
Description
Le Seasons is a 212-unit secure building in beautiful Côte Saint-Luc. On-site amenities include an indoor pool, sauna, community room, heated indoor garage. There are also plenty of services and amenities nearby, including Cavendish Mall, grocery stores, pharmacies, and banks. Looking for a nice friendly neighborhood to call home? Welcome to Le Seasons.
Inclusions
- Heating
- Hot water
- Electricity
- Semi-furnished
Characteristics
- Stockage
- Number of bathroom : 1
- Private balcony : 1
- Unheated indoor parking : additional costs are to be expected
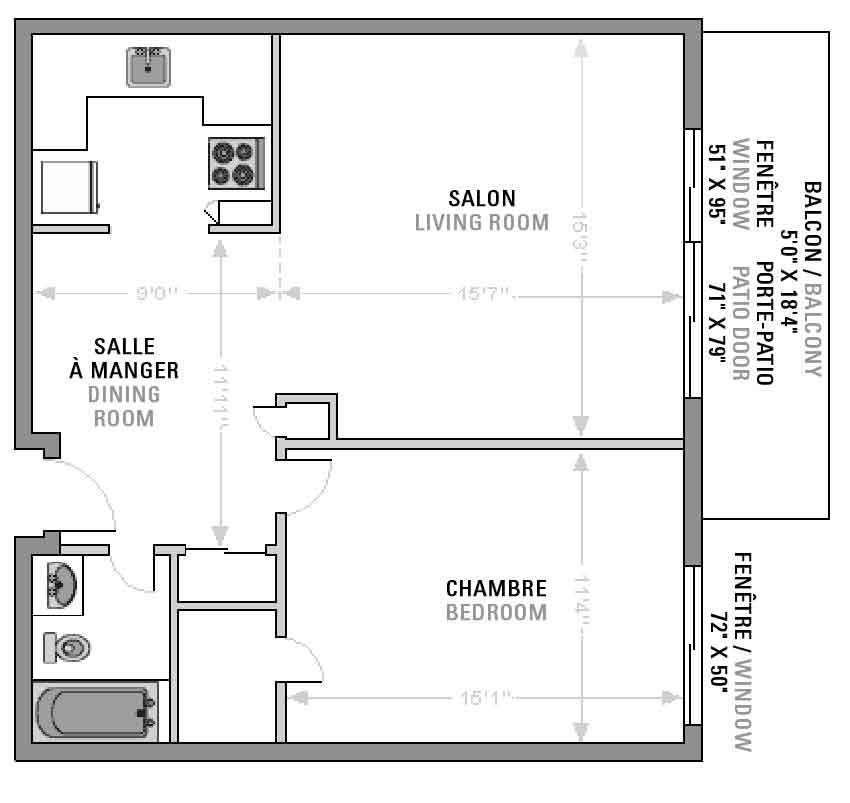
Plan of the apartment
