Laberge

For information or visit

Phone
514-489-4963
Go to
7400 rue Sherbrooke Ouest, Montréal, H4B 1R8
Email
sutton@laberge.qc.ca

Place Sutton

7400 rue Sherbrooke Ouest, Montréal, H4B 1R8

Notre-Dame-de-Grâce Place Sutton #7400 217 1

Size

Description

Place Sutton is a 400-unit building in Côte-des-Neiges–Notre-Dame-de-Grâce. Amenities include an indoor pool, outdoor courtyard, community room, and laundry room. Place Sutton is close to a multitude of centres of interest and services such as grocery shops, pharmacies, primary and secondary schools as well as major roads. Well served, it is close to the Montreal-Ouest commuter train station, bus stops, highways and bixi bike stations. Plus students can walk to the Loyola Campus of Concordia University in just minutes. Come home to Place Sutton and enjoy safe, pleasant living with tons of options.

Inclusions

  • Heating
  • Hot water
  • Electricity
  • Semi-furnished

Characteristics

  • Stockage
  • Number of bathroom : 1
  • Private balcony : 1
  • Unheated indoor parking : additional costs are to be expected

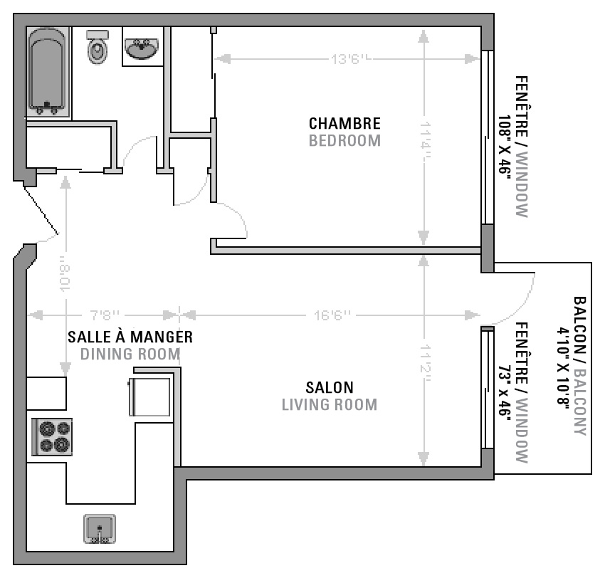
Plan of the apartment