Place du Hâvre
98 rue de la Pointe-aux-Lièvres, Québec, G1K 9B5
Size
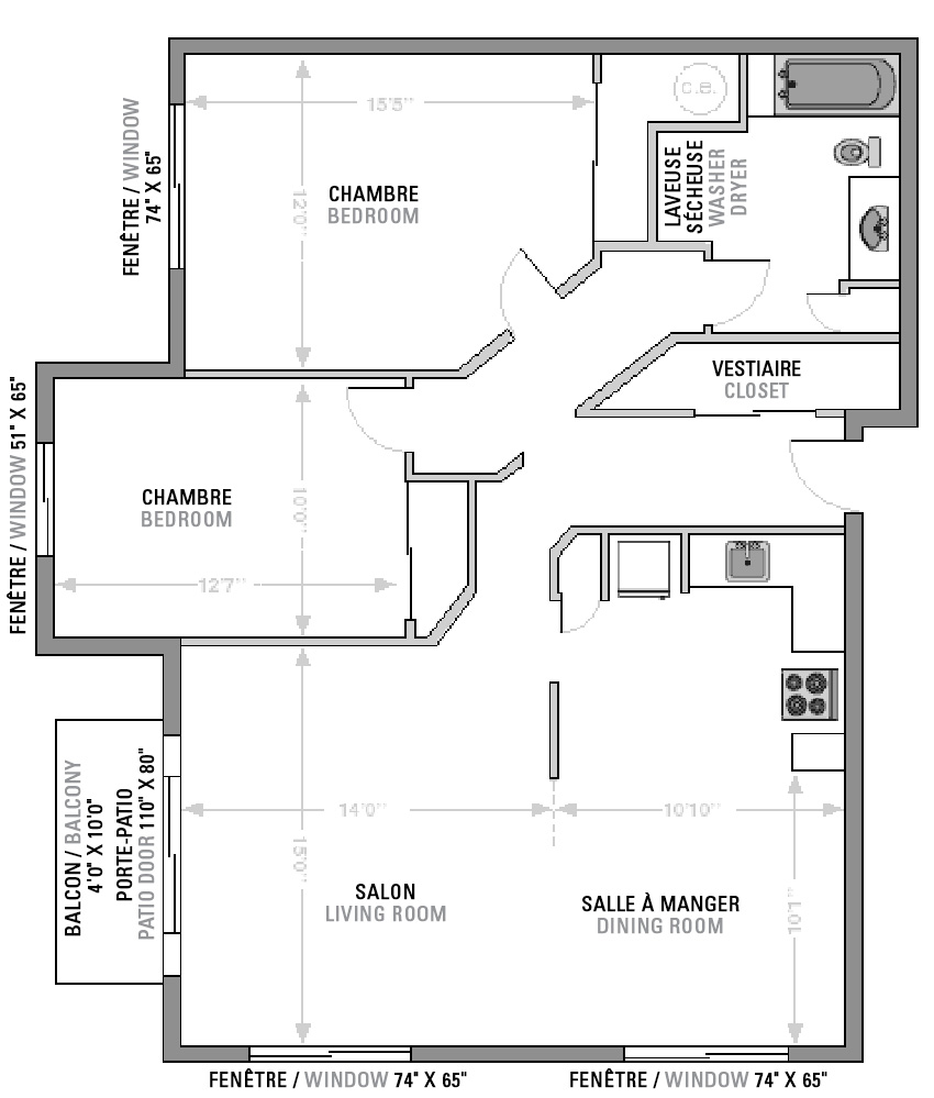
4½
Description
Place du Hâvre is a three-building complxe with 121 apartments that is located to the north of Nouvo Saint-Roch, just minutes from Parc de la Pointe-aux-lièvres, Old Quebec, the Old Port, and Vieux-Limoilou. It boasts excellent access to public transit as well as major roads and the A73, and is close to shops, restaurants, and the Stade Canac. Enjoy modern living in a vibrant neighborhood.
Inclusions
- Heating
- Hot water
- Electricity
Characteristics
- Washer, dryer inlet
- Stockage
- Number of bathroom : 1
- Private balcony : 1
- Outdoor parking : depending on the availability
- Unheated indoor parking : additional costs are to be expected
Plan of the apartment
