Le Lalande
9840 apt 203, boulevard Gouin O, Pierrefonds, H8Y 3H1
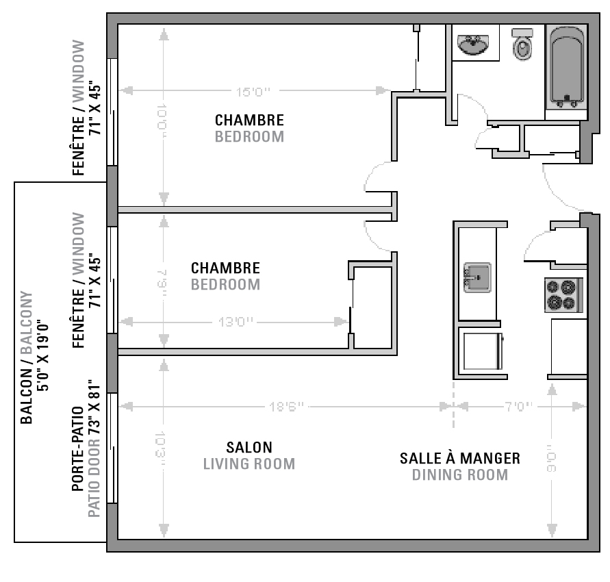
Size
4½
Floor
2
Description
With 392 units in four buildings, Le Lalande offers his residents a pleasant and secure living environment. It has all the advantages of an urban setting, with access to services, grocery stores, restaurants, schools, public transit, and the Sunnybrooke train station. The complex has both indoor and outdoor parking. Looking for a quiet and welcoming place to call home? Le Lalande is for you.
Inclusions
- Heating
- Hot water
- Electricity
- Semi-furnished
Characteristics
- Stockage
- Number of bathroom : 1
- Private balcony : 1
- Outdoor parking : depending on the availability
- Heated indoor parking : 130$
Plan of the apartment
